
2 Beds
2 Baths
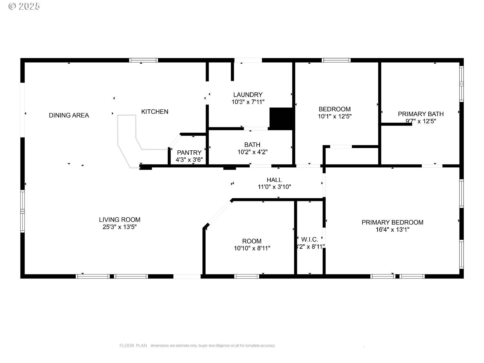
1,568 SqFt
2 Beds
2 Baths
1,568 SqFt
Key Details
Property Type Manufactured Home
Sub Type Manufactured Homein Park
Listing Status Active
Purchase Type For Sale
Square Footage 1,568 sqft
Price per Sqft $79
MLS Listing ID 121825813
Style Stories1, Double Wide Manufactured
Bedrooms 2
Full Baths 2
HOA Y/N No
Land Lease Amount 985.0
Year Built 2018
Annual Tax Amount $1,179
Tax Year 2025
Property Sub-Type Manufactured Homein Park
Property Description
Location
State WA
County Clark
Area _61
Interior
Interior Features Granite, High Ceilings, Laundry, Soaking Tub, Washer Dryer
Heating Forced Air
Cooling Heat Pump
Appliance Dishwasher, Free Standing Range, Free Standing Refrigerator, Microwave, Pantry
Exterior
Exterior Feature Covered Deck, Fenced, Yard
View Territorial
Roof Type Composition
Garage No
Building
Lot Description Level
Story 1
Foundation Skirting
Sewer Public Sewer
Water Public Water
Level or Stories 1
Schools
Elementary Schools Captain Strong
Middle Schools Chief Umtuch
High Schools Battle Ground
Others
Senior Community Yes
Acceptable Financing Cash, Conventional
Listing Terms Cash, Conventional








